
solgt





solgt
Knasten 92, 9260 Gistrup
NYT REKORDSALG PÅ KUN 7 DAGE - LIGNENDE BOLIG SØGES TIL KØBERE!
Andelsrækkehus med super beliggenhed tæt ved Lundby Krat og Ørnehøj golfbane
Andelsrækkehus er velholdt og med god indretning og med nyere tag fra 2008/2009 samt nye
gavlbeklædninger og andel ligger som nr. 2 i rødstenskædehus med 3 andele.
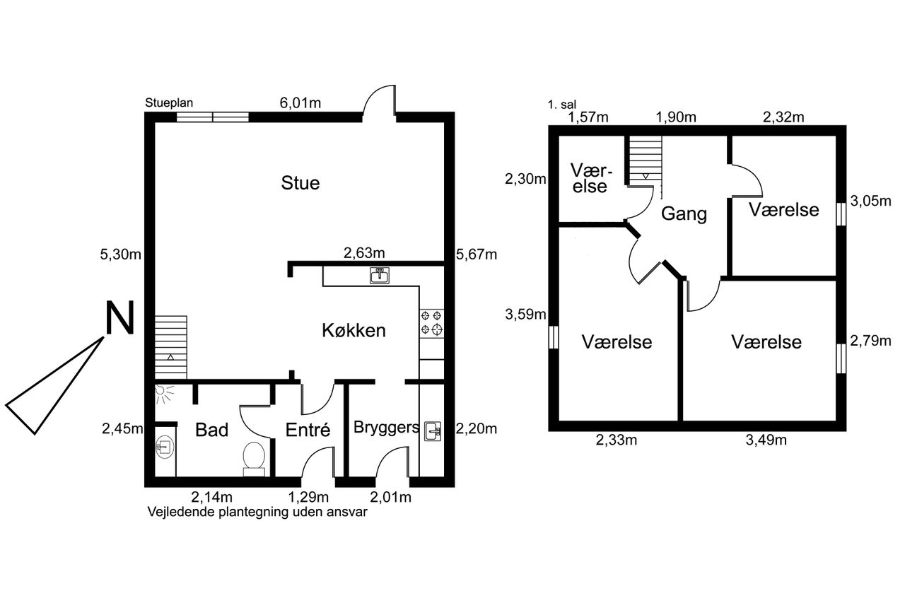
Andelsbolig er på 88 kvm. boligareal i 2 plan indeholdende: lys entré, flot lyst badeværelse med hvide
klinker på gulv og med gulvvarme, flot lyst skabsarrangement med vask samt bruseniché i hjørnet,
bryggers med bord og vask samt masser af skabs- og hyldeplads og med vaskemaskine og
tørretumbler, fra bryggers er der udgang til dejlig sydøstvendt terrasse og til parkeringsplads, nyt og flot
Ikea køkken med hvide låger og egetræbordplade fra 2012 i åben forbindelse til stuen, Hyggelig og lys
stue med dejligt lysindfald fra vinduesparti og med flotte trægulve. Adgang fra stuen til dejlig lukket
terrasse og have mod vest. 1. sal er der 3 gode værelser med trægulve og skabe, mindre depotrum,
repros. Endvidere mindre redskabsskur og der er parkeringspladser lige ved andelsboligen.
Fra Knasten er der sikker vej til skole og idrætshal ad stier og stilleveje. Busstoppested i 3 min. afstand
med afgang til Aalborg hver halve time i dagtimerne.
En spændende andelsbolig med mange muligheder og særdeles attraktiv beliggenhed!
Se mere om andelsboligforeningen på www.bogeknasten.dk
Gistrup er en attrativ by og forstad til Aalborg og ud over skole, DUS-ordning og daginstitutioner byder
Gistrup på mange sports- og fritidsaktiviteter. Endvidere er der et godt udbud af dagligvarebutikker og kun
10-15 min. til Aalborg Centrum og med kort afstand til det nye planlagte Aalborg Universitetshospital, AUC,
NOVI og Gigantium mv. Her har man tæt adgang til den flotte natur i Lundby Krat og Ørnehøj golfbane. Der
er et grønt rekreativt område med bl.a. legeplads, grill- og bålplads samt fodboldbane. Beliggenheden
med Lundby Krat og Ørnehøj golfbane som nærmeste naboer giver en dejlig udsigt og mange
aktivitetsmuligheder (gåture, cykelture, løbeture) for børn og voksne.
Andelsrækkehus med super beliggenhed tæt ved Lundby Krat og Ørnehøj golfbane
Andelsrækkehus er velholdt og med god indretning og med nyere tag fra 2008/2009 samt nye
gavlbeklædninger og andel ligger som nr. 2 i rødstenskædehus med 3 andele.
Andelsbolig er på 88 kvm. boligareal i 2 plan indeholdende: lys entré, flot lyst badeværelse med hvide
klinker på gulv og med gulvvarme, flot lyst skabsarrangement med vask samt bruseniché i hjørnet,
bryggers med bord og vask samt masser af skabs- og hyldeplads og med vaskemaskine og
tørretumbler, fra bryggers er der udgang til dejlig sydøstvendt terrasse og til parkeringsplads, nyt og flot
Ikea køkken med hvide låger og egetræbordplade fra 2012 i åben forbindelse til stuen, Hyggelig og lys
stue med dejligt lysindfald fra vinduesparti og med flotte trægulve. Adgang fra stuen til dejlig lukket
terrasse og have mod vest. 1. sal er der 3 gode værelser med trægulve og skabe, mindre depotrum,
repros. Endvidere mindre redskabsskur og der er parkeringspladser lige ved andelsboligen.
Fra Knasten er der sikker vej til skole og idrætshal ad stier og stilleveje. Busstoppested i 3 min. afstand
med afgang til Aalborg hver halve time i dagtimerne.
En spændende andelsbolig med mange muligheder og særdeles attraktiv beliggenhed!
Se mere om andelsboligforeningen på www.bogeknasten.dk
Gistrup er en attrativ by og forstad til Aalborg og ud over skole, DUS-ordning og daginstitutioner byder
Gistrup på mange sports- og fritidsaktiviteter. Endvidere er der et godt udbud af dagligvarebutikker og kun
10-15 min. til Aalborg Centrum og med kort afstand til det nye planlagte Aalborg Universitetshospital, AUC,
NOVI og Gigantium mv. Her har man tæt adgang til den flotte natur i Lundby Krat og Ørnehøj golfbane. Der
er et grønt rekreativt område med bl.a. legeplads, grill- og bålplads samt fodboldbane. Beliggenheden
med Lundby Krat og Ørnehøj golfbane som nærmeste naboer giver en dejlig udsigt og mange
aktivitetsmuligheder (gåture, cykelture, løbeture) for børn og voksne.
Torben Svendsen
Ejendomsmægler, MDE og Indehaver
Skriv dig op i mit køberkartotek
Så finder vi sammen den rigtige vej til dit nye hjem.



